新闻资讯
news
东莞市环仪仪器科技有限公司
电话:0769 83482055
传真:0769 83482056
移动电话:15322932685/宋小姐
地址:广东省东莞市东坑镇龙坑兴业路3号
常见问题
《gb/t 30806-2014 建筑用绝热制品 在指定温度湿度条件下尺寸稳定性的测试方法》标准
《gb/t 30806-2014 建筑用绝热制品 在指定温度湿度条件下尺寸稳定性的测试方法》是中国的国家标准,属于建筑用绝热制品测试方法的一部分,主要涉及在指定温度湿度条件下建筑用绝热制品尺寸稳定性的测试方法。
一、范围:
本标准规定了在规定温度和相对湿度的条件下,测定建筑用绝热制品尺寸稳定性的仪器和方法。
本标准列出了多种试验环境可供选择。
本标准适用于绝热制品。
二、试验项目:
稳定性测试方法。
三、试验设备:
恒温恒湿试验箱。
四、设备厂商:
环仪仪器
.jpg)
五、试验程序(部分):
试样的放置
将试样水平或垂直放置在试验箱内,试样之间距离不小于25 mm。将试样放置在网状的硬质金属上或是带孔的金属板上,这样试样周围的空气可以自由流通。试样不应受加热元件的直接辐射。
试验的时间
试验持续时间为(24±1)h或(48±1)h。如果相关产品标准中有要求,可以采用其他的试验时间,或由双方商定。
试验后的尺寸测量
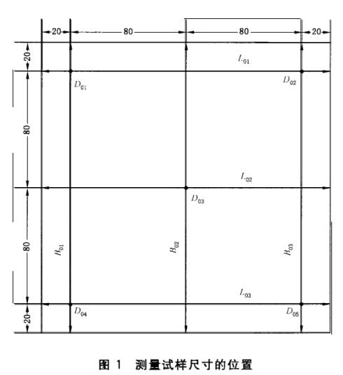
将试样从试验环境中取出,放置在(23±2)℃,相对湿度(50±5)%的环境中至少(3±1)h。测量试样最终的长度、宽度、厚度尺寸(分别记为lt、bt和dt)在和初始测量的位置同样的位置测量,记录下读数 ,测量位置见图1。
检查试样的外观。

该标准的目的是通过标准化的试验方法,评估建筑用绝热制品在特定温度湿度条件下的尺寸稳定性。这有助于确保这些绝热制品在实际使用中能够保持稳定的尺寸,提高建筑的保温效果。通过这种测试,可以了解制品在不同温度和湿度条件下的尺寸变化情况,从而为产品的质量控制和性能评估提供依据。
[上一篇: 车灯两箱起雾试验箱的一般试验方法] [下一篇: 《gb/t 30100-2013 建筑墙板试验方法》标准]
《gb/t 30806-welcome网站

环仪仪器厂家提供完整的welcome网站的售后服务,每一台环仪设备都有机身编号,只需提供机身号就可获得高效的覆盖全国30多个省市的welcome网站的售后服务,环仪承诺环境测试舱2年质保,终身维修,服务网点及周边地区确保2小时快速响应。


